Wohnen in
Sternenfels

Sternenfels · Eigentumswohnungen

Sechs provisionsfreie Eigentumswohnungen in ruhiger Lage – mit Aufzug, Stellplätzen und moderner Haustechnik.

Eckdaten

Baujahrvoraussichtlich 2025
Wohnungen3,5 – 5,5 Zimmer
Flächen112 – 156 m² + Keller
Barrierefreiteilweise möglich
Energiebedarf34,77 kWh/m²a
HeizungWärmepumpe · Fußbodenheizung
PV-Anlagevorhanden
AufzugUG bis DG
UGWasch-/Trockenraum · Fahrrad-/Kinderwagenraum
StellplätzeE-Ladestationen vorgesehen

Übersicht Verkaufsstand

Wohnung Wohnfläche Zimmer Preis Status
EG links ca. 125,52 m² 5,5 575.000 € verfügbar
EG rechts ca. 97,53 m² 3,5 445.000 € verfügbar
OG links ca. 125,87 m² 4,5 649.000 € verfügbar
OG rechts ca. 97,54 m² 3,5 555.000 € verfügbar
DG + Spitzboden links ca. 141,33 m² 4,5 675.000 € verfügbar
DG + Spitzboden rechts ca. 109,40 m² 3,5 585.000 € verfügbar

Ansichten

Vorderansicht

Vorderansicht

Klicken, um die Ansicht zu vergrößern.

Rückansicht

Rückansicht

Klicken, um die Ansicht zu vergrößern.

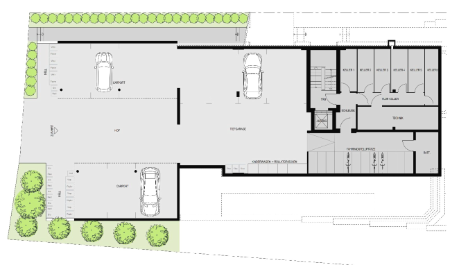
Untergeschoss

Zugang über Treppenhaus und Aufzug · Kellerräume · Fahrrad-/Kinderwagenbereiche · TG/Carport (E-Lade vorbereitet).

Untergeschoss Sternenfels

UG Sternenfels

Klicken, um den Plan zu vergrößern.

Wohnungspläne

Grundrisse als Vorschau – die vollständigen Unterlagen finden Sie im Exposé.

Grundriss W1 · EG links

W1 · EG links

ca. 125,52 m² · 5,5 Zimmer · 575.000 € · Carport inkl. · provisionsfrei

Grundriss W2 · EG rechts

W2 · EG rechts

ca. 97,53 m² · 3,5 Zimmer · 445.000 € · Carport inkl. · provisionsfrei

Grundriss W3 · OG links

W3 · OG links

ca. 125,87 m² · 4,5 Zimmer · 649.000 € · Carport inkl. · provisionsfrei

Grundriss W4 · OG rechts

W4 · OG rechts

ca. 97,54 m² · 3,5 Zimmer · 555.000 € · Carport inkl. · provisionsfrei

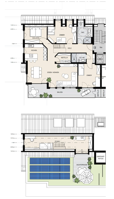
Grundriss W5 · DG + Spitzboden links

W5 · DG + Spitzboden links

ca. 141,33 m² · 4,5 Zimmer · 675.000 € · Carport inkl. · provisionsfrei

Grundriss W6 · DG + Spitzboden rechts

W6 · DG + Spitzboden rechts

ca. 109,40 m² · 3,5 Zimmer · 585.000 € · Carport inkl. · provisionsfrei

Persönliche Beratung

Für Beratung und Ortstermine stehen wir Ihnen gerne zur Verfügung. Nutzen Sie bitte das Kontaktformular – wir melden uns zeitnah zurück.